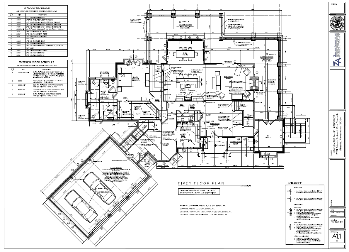
On this pristine 2 acre lot, Ashford partners has broken ground on a 6,674 sqft Shingle style house in the very desirable area of Pine township. The property is nicely tucked in a quiet area off Babcock Blvd. Behind the property sits protected land that is off limits to development which guarantees any potential buyer that their privacy will be protected. Below are pictures of the ongoing construction of the house so far, and blueprints of what the finished product will be. If interested in the purchase of this real estate please call our office for any other questions.

Site Plan.PNG
First floor Plan.PNG
Second Floor Plan.PNG
Front Elevation.PNG
rear spec house elevations.PNG